Knusse eengezinswoning met een extra diepe tuin, twaalf zonnepanelen en nieuwe kunststof kozijnen
Ben je op zoek naar een gezellige woning op een rustige, kindvriendelijke locatie in Almere? Deze knusse tussenwoning met drie slaapkamers ligt in de populaire wijk De Wierden in Almere-Haven en is de ideale plek voor starters, stellen of jonge gezinnen die rustig willen wonen met alles binnen handbereik. Afhankelijk van je wensen, kun je het interieur geheel naar eigen smaak aanpassen.
Gelegen in de groene, kindvriendelijke woonwijk De Wierden, ligt Leemwierde 197 op korte afstand van allerlei dagelijkse voorzieningen. Op loop- en fietsafstand vind je diverse supermarkten, basisscholen, kinderopvang en sportverenigingen.
Lees verderDe buurt staat bekend om haar rust, veel groen, de kind-vriendelijkheid en de goede verbindingen met de rest van Almere. In de nabije omgeving zijn er meerdere speeltuinen, diverse parken en het Gooimeer. Openbaar vervoer is goed bereikbaar, met buslijnen richting Almere Stad en het NS-station. De uitvalswegen A6 en A27 bieden een snelle verbinding naar Amsterdam, Lelystad en ’t Gooi.
Begane grond:
De entree met hal biedt toegang tot de meterkast en een toilet met fontein. De tuingerichte woonkamer is voorzien van plavuizen. De halfopen keuken is uitgerust met inbouwapparatuur: een vier-pits gasfornuis, koelkast met vriezer, combi-oven, inductiekookplaat en een recirculatie afzuigkap.
Eerste verdieping:
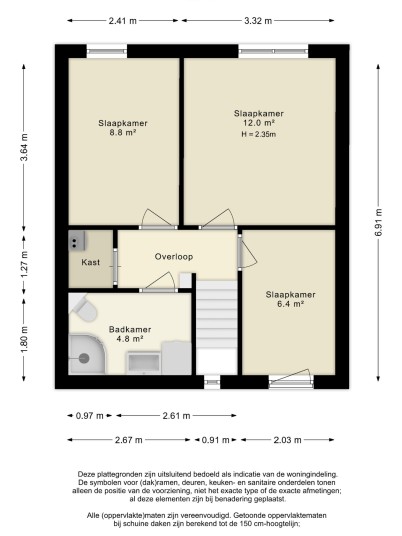
Op de overloop vind je toegang tot drie slaapkamers, de badkamer en de stookruimte. De hoofdslaapkamer is gelegen aan de achterzijde, samen met een andere slaapkamer. De slaapkamer aan de voorzijde is voorzien van een Frans balkon. De badkamer is voorzien van een douchecabine, toilet, wastafel met meubel en de aansluitingen voor de wasmachine en droger.
Buiten:
Aan de voorzijde van de woning is een stenen berging met elektra, die is aangebracht bij de bouw. Via de achterdeur kom je in de achtertuin, waar je heerlijk van de zon kunt genieten. De tuin ligt op het Zuidwesten en is extra diep doordat er grond van de gemeente is aangekocht. De eigenaar heeft een zonnescherm, een extra berging en een overkapping aan de achterzijde geplaatst. De woning ligt relatief vrij aan zowel de voor- als achterzijde, wat zorgt voor extra privacy.
De twaalf zonnepanelen zijn geïnstalleerd in 2023 en de nieuwe kunststof kozijnen zijn geïnstalleerd in 2022. Duurzaam en onderhoudsarm!
Kenmerken:
Woonoppervlak: 80 m²
Perceeloppervlak: 146 m² perceel + 34 m² aangekocht =180 m² totaal
Tuin: Zuidwesten
Kamers: 4
Slaapkamers: 3
Bouwjaar: 1983
Energielabel: A (geldig t/m 31-10-2035)
Zonnepanelen: 12 stuks, geïnstalleerd in 2023
Kozijnen: Kunststof, geïnstalleerd in 2022
Voorzieningen: Frans balkon, CV-ketel uit 2012
Parkeren: Openbaar
Benieuwd naar deze knusse woning? Vraag een bezichtiging aan via Funda en ontdek de mogelijkheden!
