Let op! De vraagprijs betreft een "Bieden vanaf prijs".
Op een mooie locatie in hartje centrum van Dronten is dit leuke 3 kamer appartement gelegen. Dit appartement is op de eerste verdieping gelegen direct boven de parfumerie en tegenover de Albert Heijn. Hierdoor ligt het centrum van Dronten letterlijk aan uw voeten met onder andere supermarkten, kappers, groentewinkel, Blokker, een Viswinkel, de Hema en nog veel meer leuke winkels. Het winkelcentrum biedt veel openbare parkeergelegenheid, waar het appartement eigen parkeergelegenheid direct naast de deur heeft. Op korte afstand zijn het treinstation met openbaar vervoer alsmede uitvalswegen gelegen.
Lees verderHet complex is jong en kleinschalig, waardoor de servicekosten aantrekkelijk gehouden kunnen blijven. Ieder appartement heeft z'n eigen opgang, waardoor er geen algemene ruimte met trappenhuis of lift aanwezig is.
Indeling
Begane grond: entree, ruime hal met ruimte voor garderobe, meterkast, trapopgang en inpandige privé-berging.
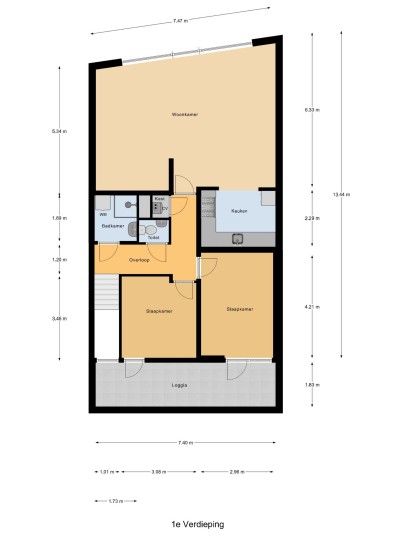
Eerste verdieping: overloop, met aansluitend 2 mooie slaapkamers, een moderne badkamer met wastafel, wasmachineaansluiting en douche. Separaat is aan de overloop een toiletruimte en een werkkast met c.v.-ketel aanwezig. Aan de zijde van de winkelstraat is de brede woonkamer gesitueerd met uitzicht op de winkelstraat. Aansluitend is de hoek opgestelde keuken gesitueerd. Aan de achterzijde bieden de slaapkamers toegang tot het balkon op het zuiden.
* Bouwjaar 2003; oppervlakte: ... m²
* Centraal gelegen met uitzicht over de winkelstraat
* Eigen parkeervoorziening naast de deur
* Voldoende parkeergelegenheid rondom het complex
* Ruime keuken met ingebouwde apparatuur
* Moderne toiletruimte en badkamer
* Breed balkon op het zuiden
* Goed afgewerkt en onderhoudsarm
* Inpandige privé berging
* Energielabel B
* Bijdrage VvE € 65,56
* Aanvaarding in overleg, snelle levering mogelijk
* Bij verkoop hanteren wij een NVM koopakte model 2023 met de volgende aanvullende clausules: niet zelfbewoningclausule
* Makelaardij Van der Linden
Het verkoopproces verloopt in zijn geheel via MOVE.nl en daarmee ook het biedingsproces. Wanneer u contact met ons opneemt voor een bezichtiging helpen wij u hiermee. Biedingen dienen via MOVE te worden ingediend. U ontvangt op het moment dat u een afspraak voor bezichtiging maakt, inloggegevens voor een MOVE account. Via dat account kunt u alle benodigde informatie en documenten inzien en, indien gewenst, een bod uitbrengen.
Deze informatie is door ons met de nodige zorgvuldigheid samengesteld. Onzerzijds wordt echter geen enkele aansprakelijkheid aanvaard voor enige onvolledigheid, onjuistheid of anderszins, dan wel de gevolgen daarvan. Alle opgegeven maten en oppervlakten zijn indicatief.
