Royaal 4-kamer HOEKappartement, gelegen op de tweede verdieping van een appartementencomplex in Holtenbroek.
Vanuit de woonkamer heeft u vrij uitzicht op een brede groenstrook. Het nieuwe en uitgebreide winkelcentrum is werkelijk op loopafstand bereikbaar. Ook is het gunstig gelegen ten opzichte van de bruisende binnenstad van Zwolle. De uitvalswegen zijn eveneens goed bereikbaar.
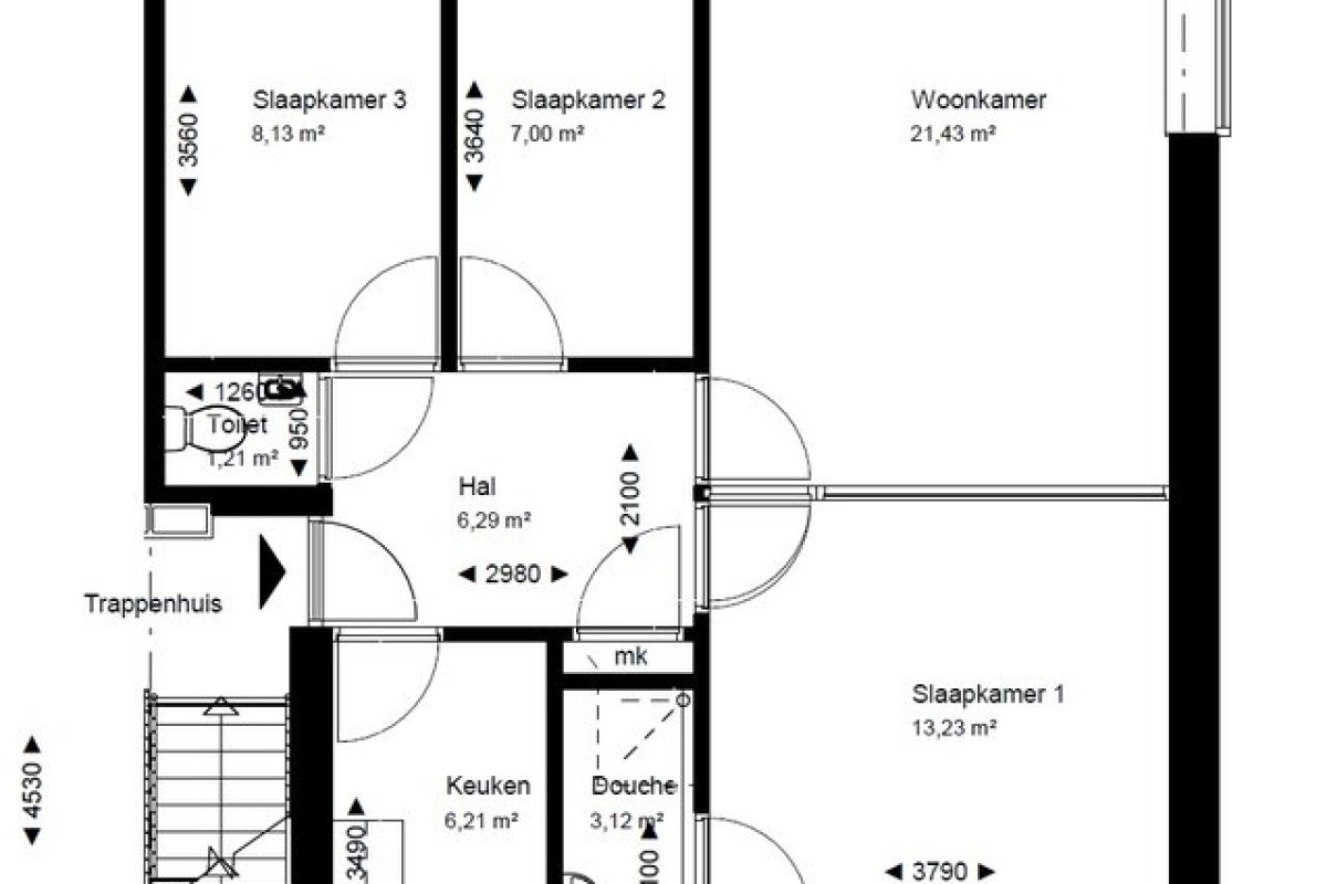
Indeling: entree, ruime hal, met toegang tot de keuken, drie slaapkamers, woonkamer, c.v.-ruimte en toilet. De dichte keuken is netjes en uitgevoerd in lichte kleurstelling. Via de keuken alsook via één van de slaapkamers is de badkamer te bereiken.
Lees verderDe badkamer is een aantal jaren geleden gemoderniseerd en beschikt over een douche, wastafel en wasmachineaansluiting. Het balkon aan de voorzijde is via de keuken en de slaapkamer te bereiken. De woonkamer heeft veel lichtinval en kijkt fraai uit over een breed grasveld. Ook aan deze kant is een ruim balkon aanwezig welke bereikbaar is via de woonkamer en de twee slaapkamers.
Algemeen:
-Verwarming middels een HR combiketel (2007);
-Bijdrage Vve circa € 133,00 per maand;
-Geheel voorzien van dubbele beglazing;
-Het appartement beschikt over twee balkons;
-Projectnotaris Duret Trip te Zwolle;
-Anti-speculatiebeding gedurende twee jaar;
-Koper is gedurende twee jaar verplicht het gekochte uitsluitend te gebruiken om zelf (met zijn eventuele gezinsleden) te bewonen en het gekochte niet aan derden te verhuren of op andere wijze in gebruik te geven.
De verkoop geschiedt middels een biedingformulier welke u tijdens de bezichtiging aangereikt krijgt.
