** English text below**
Modern eengezinswoning van circa 98 m² met zonnige achtertuin, nabij het Eendrachtspark in Amsterdam Nieuw-West! De erfpacht is eeuwigdurend afgekocht.
Deze sfeervolle woning ligt in een rustige, groene en kindvriendelijke buurt van de Westelijke Tuinsteden, vlak bij de Haarlemmerweg en de Burgemeester de Vlugtlaan. De wijk biedt alles wat je nodig hebt. Basisscholen, BSO's, middelbare scholen en kinderopvang liggen op loop- of fietsafstand. Voor de dagelijkse boodschappen en een gezellige middag shoppen loop of fiets je zo naar winkelcentrum Plein ’40 – ’45 met zijn bruisende markt. De woning is goed onderhouden. Hierdoor is de woning instap-klaar.
Lees verderDe bereikbaarheid is uitstekend: met de tram of bus ben je in korte tijd in het centrum of op treinstation Sloterdijk. Je bereikt binnen no-time de N200, Ring A10 en de A5. Parkeren kan voor de deur met een vergunning.
Indeling:
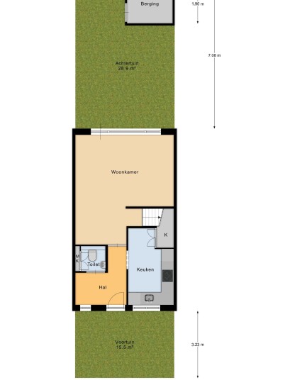
Begane grond:
Entree, ruime hal met garderobe. Toilet en meterkast. De moderne keuken aan de voorzijde van de woning is voorzien van inbouwapparatuur, zoals vaatwasser, afzuigkap, oven, inbouwkoelkast en inductiekookplaat. De lichte woonkamer kijkt uit op de fraai aangelegde, zonnige achtertuin op het oosten, wat ideaal is om samen te genieten van lange zomerdagen. Onder de trap, naast de keuken, is een ruime berging. De woning is voorzien van kunststof kozijnen. De gehele benedenverdieping is voorzien van vloerverwarming.
Eerste verdieping:
Overloop met toegang tot drie slaapkamers van goed formaat, ideaal voor een gezin, een logeerkamer of een thuiswerkplek. De stijlvolle badkamer is voorzien van een inloop-regendouche, een tweede hangtoilet, een wastafelmeubel en een handdoekradiator. Ook hier is vloerverwarming aanwezig.
Tweede verdieping:
Via een vaste trap bereikt u de bovenste verdieping. Hier bevindt zich de royale master bedroom met dakkapel aan de achterzijde. De grote ramen zorgen voor veel daglicht. Hier vindt u ook de wasruimte met aansluitingen voor wasmachine en droger. De C.V.-ketel Intergas CW5 is splinternieuw (2026), is hybride ready en kan dus gekoppeld worden aan een warmtepomp. Deze verdieping is voorzien van inbouwkasten en praktische bergruimte achter de knieschotten. Er is een vergunning om een dakkapel aan de voorzijde te plaatsen. Zie extra plattegrond ter indicatie.
Tuin:
De achtertuin is onderhoudsvriendelijk betegeld en biedt ruimte voor een lounge-set. Er is een houten schuur, een overkapping, elektrische zonwering voor extra comfort en een achterom. Ook de voortuin is mooi betegeld. Achter de tuin ligt een groen hofje met een grote speeltuin met schommels, klimtoestellen en een glijbaan. Ideaal voor de kinderen om te spelen.
Grondsituatie:
De woning ligt op erfpachtgrond. De canon voor de erfpacht is eeuwigdurend afgekocht!
Bijzonderheden:
- Woonoppervlakte ca. 98,2 m², totale gebruiksoppervlakte 102,4 m², totale inhoud ca. 330 m², perceel 94 m². (Conform NEN 2580 meetrapport en Kadaster);
- Bouwjaar 1954;
- Erfpacht eeuwigdurend afgekocht;
- Dakkapel achterzijde en vergunning voor 2e dakkapel (voorzijde);
- Ruime en zonnige achtertuin op het oosten;
- Berging in de tuin, voorzien van elektra;
- Energielabel B;
- C.V.-ketel Intergas HRE 36/30 RF Combiketel CW5 uit 2026, hybride ready;
- Notaris naar keuze van de koper, koopakte volgens Ringmodel Amsterdam;
- Parkeren voor de deur via parkeervergunning (informatie bij gemeente Amsterdam, tweede vergunning mogelijk), elektrisch laden kan in de straat;
- Oplevering in overleg.
Neem contact op voor een bezichtiging en ontdek de mogelijkheden die deze mooie woning te bieden heeft!
------------------------------------------------------------------------------------------------------------------------------------------------------------------------------------------------------------------------------------------------
*** ENGLISH ***
Modern single-family home of approximately 98 m² with a sunny backyard, near Eendrachtspark in Amsterdam Nieuw-West! The leasehold has been bought out for eternity.
This charming home is located in a quiet, green, and child-friendly neighborhood of the Western Garden Cities, close to Haarlemmerweg and Burgemeester de Vlugtlaan. The area offers everything you need. Primary schools, daycare, secondary schools, and childcare are within walking or cycling distance. For daily shopping or a fun afternoon of shopping, you can easily walk or bike to shopping center Plein '40 – '45 with its vibrant market. The property has been well-maintained, making it move-in ready.
The accessibility is excellent: with the tram or bus, you can reach the city center or Sloterdijk train station in no time. The N200, Ring A10, and A5 are easily accessible. Parking is available in front of the house with a permit.
Layout:
Ground floor:
Entrance, spacious hall with wardrobe. Toilet and meter cupboard. The modern kitchen at the front of the house is equipped with built-in appliances such as a dishwasher, extractor hood, oven, built-in fridge, and induction cooktop. The bright living room overlooks the beautifully landscaped, sunny backyard to the east, perfect for enjoying long summer days. Under the stairs, next to the kitchen, is a large storage room. The house features PVC windows. The entire ground floor is equipped with underfloor heating.
First floor:
Landing with access to three well-sized bedrooms, ideal for a family, a guest room, or a home office. The stylish bathroom is equipped with a walk-in rain shower, a second wall-hung toilet, a vanity unit, and a towel radiator. Underfloor heating is also present here.
Second floor:
A fixed staircase leads to the upper floor. Here, you'll find the spacious master bedroom with a dormer at the rear. The large windows provide plenty of natural light. You will also find the laundry room with connections for a washing machine and dryer. The new Intergas CW5 boiler (2026) is hybrid-ready and can be connected to a heat pump. This floor features built-in wardrobes and practical storage space behind the knee walls. There is a permit to add a dormer at the front. See the additional floor plan as an example.
Garden:
The backyard is low-maintenance, paved, and offers space for a lounge set. There is a wooden shed, a canopy, electric sun shading for added comfort, and an access gate at the back. The front garden is also beautifully paved. Behind the garden, there is a green courtyard with a large playground featuring swings, climbing equipment, and a slide. Ideal for children to play.
Land situation:
The property is on leasehold land. The leasehold ground rent has been bought out for eternity!
Key features:
- Living area approximately 98.2 m², total usable area 102.4 m², total volume approximately 330 m³, plot size 94 m². (According to NEN 2580 measurement report and Kadaster);
- Year of construction 1954;
- Leasehold has been bought out for eternity;
- Dormer at the rear and permit for a second dormer (front);
- Spacious and sunny backyard facing east;
- Storage shed in the garden, equipped with electricity;
- Energy label B;
- New Intergas HRE 36/30 RF Combination Boiler CW5 from 2026, hybrid-ready;
- Notary of the buyer’s choice, purchase agreement according to Ring Model Amsterdam;
- Parking in front of the door via parking permit (information from the municipality of Amsterdam, second permit possible), electric car charging available on the street;
- Delivery in consultation.
Contact us for a viewing and discover the opportunities this beautiful property has to offer!
