** English below **
Energielabel A+, eeuwigdurend afgekochte erfpacht en een zonnig balkon op het zuiden!
Dit lichte, turn-key 2-kamerappartement (voorheen 3-kamerappartement) van ca. 65 m² is onlangs verduurzaamd met HR+ glas. Het ligt op de 5e verdieping met vrij uitzicht, direct naast de bruisende Amsterdamse Poort. Instapklaar wonen op een toplocatie. Kom snel kijken!
Wonen in de 'Next Hotspot' van Amsterdam Zuidoost: Ben je op zoek naar een appartement waar je letterlijk alleen de verhuisdozen hoeft uit te pakken? Dit appartement biedt de perfecte combinatie van modern wooncomfort en een strategische ligging.
Lees verderMet een energielabel A+, een actieve VvE die volop investeert in verduurzaming en de erfpacht die eeuwigdurend is afgekocht, kies je hier voor financiële zekerheid in een dynamische woningmarkt.
Dankzij de slimme herindeling (van 3 naar 2 kamers) geniet je nu van een riante, doorzon-woonkamer met een luxe open keuken. De grote raampartijen met vernieuwd HR+-glas zorgen voor een zee aan daglicht en een vrij uitzicht aan zowel de voor- als achterzijde. Wil je toch een tweede slaapkamer? Dat is eenvoudig weer te realiseren!
Het kamerbrede balkon op het zuiden is de perfecte plek voor een zomerse borrel in de zon buiten. De locatie laat niets te wensen over. Aan de overkant vind je de Amsterdamse Poort voor al je boodschappen of een heerlijke lunch in een van de vele hotspots. Voor entertainment loop je zo naar de Arena Boulevard met bijvoorbeeld de Ziggo Dome of de Pathé-bioscoop. Voor je rust ga je naar het Nelson Mandelapark of ga je heerlijk zwemmen in het Gaasperplas. Die liggen op slechts een paar minuten afstand.
De bereikbaarheid van het appartement is fantastisch. Station Bijlmer Arena (intercity trein, metro) en bushaltes liggen op een paar honderd meter lopen. In een kwartier ben je vanaf hier op Amsterdam Centraal Station. Ook met de auto is het appartement goed bereikbaar. De uitvalswegen hebben een goede aansluiting op de Ringweg A-10, vlot richting Schiphol, Almere, Zaandam, Utrecht. Er is voldoende parkeergelegenheid.
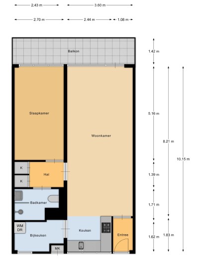
Indeling:
Begane grond:
Centrale afgesloten hal met intercom, brievenbussen, liftinstallatie, trap.
Vijfde verdieping:
Entree; tochthal met garderobe; lichte en royale woonkamer met ruimte voor een grote eettafel. De moderne open keuken (2021) is voorzien van alle gemakken: inductiekookplaat, vaatwasser, koel-/vriescombinatie en afzuigkap. Aangrenzend vind je de praktische inpandige bijkeuken met aansluiting voor de wasmachine en droger. Via de tussenhal bereik je de ruime slaapkamer aan de achterzijde, die directe toegang biedt tot het zonnige balkon op het zuiden. De nette badkamer (2018) is luxe afgewerkt met een inloopdouche, wastafelmeubel en een modern zwevend toilet.
Grondsituatie:
Het appartement bevindt zich op gemeentelijke erfpachtgrond van Gemeente Amsterdam. De erfpacht is eeuwigdurend afgekocht! De Algemene Bepalingen van 2016 zijn van toepassing.
Bijzonderheden:
- Bouwjaar 1969, complex gemoderniseerd in 1996;
- Appartement gemoderniseerd in 2018;
- Woonoppervlakte ca. 65,1 m² (NEN 2580 meetrapport aanwezig);
- VvE-Bijdrage € 350,62- per maand (inclusief aflossing verduurzamingslening en € 78,37 voor voorschot stookkosten);
- Energielabel A+: Zeer lage energielasten en mogelijk rentekorting op je hypotheek!;
- Erfpacht: Eeuwigdurend afgekocht. Nooit meer jaarlijkse kosten of herzieningen;
- Verduurzaming: VvE is actief bezig; recent voorzien van HR+-glas en lening via Duurzaamheidsfonds;
- Verwarming middels stadsverwarming;
- Zonovergoten: Kamerbreed balkon gelegen op het zuiden;
- Locatie: Op loopafstand van metro, trein en winkelcentrum;
- Starters: Valt onder de grens voor de startersvrijstelling overdrachtsbelasting (0%);
- 1 of 2 slaapkamer(s): Eenvoudig terug te brengen naar een 3-kamerappartement indien gewenst;
- Ouderdoms-/asbestclausule van toepassing;
- Oplevering: In overleg.
----------------------------------------------------------------------------------
** English version **
Energy label A+, perpetual ground lease buyout, and a sunny south-facing balcony!
This bright, turn-key 1-bedroom apartment (previously 2-bedroom) of approximately 65 m² has recently been upgraded with HR+ glass. Located on the 5th floor, it offers unobstructed views, right next to the vibrant Amsterdamse Poort. Move-in ready living in a prime location. Come see it soon!
Living in the 'Next Hotspot' of Amsterdam Zuidoost: Are you looking for an apartment where you literally only need to unpack the moving boxes? This apartment offers the perfect combination of modern living comfort and a strategic location. With an A+ energy label, an active Homeowners' Association (VvE) investing in sustainability, and a perpetually bought-out ground lease, this is a financially secure choice in a dynamic housing market.
Thanks to the smart redesign (from 3 to 2 rooms), you now enjoy a spacious, light-filled living room with a luxury open kitchen. The large windows with newly installed HR+ glass provide an abundance of natural light and unobstructed views on both the front and back. Want a second bedroom? It can easily be recreated!
The wide, south-facing balcony is the perfect place for a summer drink in the sun. The location leaves nothing to be desired. Across the street, you'll find the Amsterdamse Poort for all your shopping needs or a delightful lunch at one of the many hotspots. For entertainment, you can walk to Arena Boulevard, home to the Ziggo Dome or Pathé Cinema. For relaxation, head to Nelson Mandela Park or enjoy a swim at Gaasperplas, both just minutes away.
The apartment’s accessibility is fantastic. Bijlmer Arena station (intercity train, metro) and bus stops are just a few hundred meters away. In 15 minutes, you'll be at Amsterdam Central Station. The apartment is also well-connected by car. The roads offer excellent access to the A-10 Ring Road, quickly reaching Schiphol, Almere, Zaandam, and Utrecht. Ample parking is available.
Layout:
Ground floor:
Central enclosed hallway with intercom, mailboxes, elevator, and stairs.
Fifth floor:
Entrance; vestibule with wardrobe; light and spacious living room with room for a large dining table. The modern open kitchen (2018) is equipped with all amenities: induction cooktop, dishwasher, refrigerator/freezer, and extractor hood. Adjacent is the practical utility room with connections for a washing machine and dryer. Through the hallway, you reach the spacious bedroom at the rear, which provides direct access to the sunny south-facing balcony. The neat bathroom (2018) is luxuriously finished with a walk-in shower, vanity unit, and a modern floating toilet.
Ground situation:
The apartment is located on municipal ground lease land owned by the Municipality of Amsterdam. The ground lease has been perpetually bought out, meaning there are no future costs or adjustments associated with the lease! The General Terms and Conditions of 2016 apply.
Special features:
- Built in 1969, complex modernized in 1996;
- Apartment modernized in 2018;
- Living area approx. 65.1 m² (NEN 2580 measurement report available);
- VvE contribution approx. €350,62 per month (including repayment of the sustainability loan and €78,37 advance heating costs);
- Energy label A+: Very low energy costs and potential interest rate discount on your mortgage!;
- Ground lease: Perpetually bought out. No more annual costs or revisions;
- Sustainability: The VvE is actively involved; recently equipped with HR+ glass and a loan via the Sustainability Fund;
- Heating via district heating;
- Sun-drenched: Room-wide balcony facing south;
- Location: Within walking distance of metro, train, and shopping center;
- First-time buyers: Falls under the threshold for the first-time buyer exemption on transfer tax (0%);
- 1 or 2 bedrooms: Can easily be converted back into a 3-bedroom apartment if desired;
- Age/asbestos clause applies;
- Delivery: In consultation.
