Let op! Deze vraagprijs betreft een "Bieden vanaf vraagprijs".
In een rustige kindvriendelijke wijk in Dronten-Zuid staat deze eengezinswoning met recent vernieuwde badkamer en toiletruimte op een perceel van 140m² eigen grond. De woning is goed onderhouden, voorzien van nieuwe kunststof dakramen en tevens voorzien van HR++ glas. De onderhoudsarme tuin is op het noordoosten gesitueerd en voorzien van een ruim zonneterras, achterom en een vrijstaande stenen berging met fraai aangebouwde overkapping. Scholen, het gezondheidscentrum en het winkelcentrum Dronten zuid zijn op loopafstand aanwezig. De wijk biedt tevens voldoende openbare parkeergelegenheid.
Lees verderIndeling:
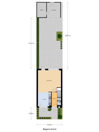
Begane grond: overdekt entree, vernieuwde toiletruimte met hangcloset en fonteintje, meterkast, garderobe en trapopgang. De open keuken is aan de voorzijde van de woning gelegen en is voorzien van veel kastruimte en een vrijstaande koel-/vriescombinatie, een gasfornuis met 4-pits gaskookplaat een afzuigkap. De tuingerichte woonkamer is voorzien van een praktische provisieruimte onder de trap en een nieuwe loopdeur biedt toegang tot de zonnige tuin welke voorzien is van een terras, borders met vaste beplanting, een vrijstaande stenen schuur en een prachtige grote overkapping met achterom.
Eerste verdieping: overloop voorzien van een laminaatvloer met aansluitend 2 ruime slaapkamers en de badkamer. De ruime slaapkamer aan de achterzijde van de woning biedt een nieuw dakraam veel licht. Deze kamer is wellicht op te delen in 2 kamers. Aan de voorzijde van de woning is de tweede slaapkamer gesitueerd en beide slaapkamers zijn voorzien van een laminaatvloer. De vernieuwde badkamer is volledig voorzien van een lichte betegeling en heeft een ligbad met douche, een wastafel met meubel en een designradiator.
2e verdieping: vaste trap naar de voorzolder waar de cv-ketel (Intergas HR), wasmachine, droger en de vernieuwde mechanische ventilatie unit staan opgesteld, tevens biedt de voorzolder veel bergruimte, mooie 3e slaapkamer voorzien van een laminaatvloer en een nieuw kunststof dakraam.
* Bouwjaar: 1980 perceeloppervlakte: 140m2
* Diepe tuin op het noordoosten gelegen
* 3 mooie slaapkamers
* Voorzien van HR++ glas
* Vernieuwde toiletruimte en badkamer
* Voorzien van vernieuwde kunststof dakramen
* Voorzien van vrijstaande stenen berging
* Prachtige grote overkapping
* Ruime openbare parkeergelegenheid
* Aanvaarding in overleg
* Energielabel B
* Bij verkoop hanteren wij een NVM koopakte model 2023 met de volgende aanvullende clausules: asbestclausule / ouderdomsclausule
* Makelaardij Van der Linden
Het verkoopproces verloopt in zijn geheel via MOVE.nl en daarmee ook het biedingsproces. Biedingen dienen via MOVE te worden ingediend. U ontvangt op het moment dat u een afspraak voor bezichtiging maakt, inloggegevens voor een MOVE account. Via dat account kunt u alle benodigde informatie en documenten inzien en, indien gewenst, een bod uitbrengen.
Deze informatie is door ons met de nodige zorgvuldigheid samengesteld. Onzerzijds wordt echter geen enkele aansprakelijkheid aanvaard voor enige onvolledigheid, onjuistheid of anderszins, dan wel de gevolgen daarvan. Alle opgegeven maten en oppervlakten zijn indicatief.
