Royaal 3-kamer appartement aan de Hogenkampsweg, gelegen op de 1e verdieping met berging op zolderverdieping en berging op de begane grond.
De locatie is ideaal: dichtbij het winkelcentrum, vlakbij de binnenstad en nabij uitvalswegen (A28).
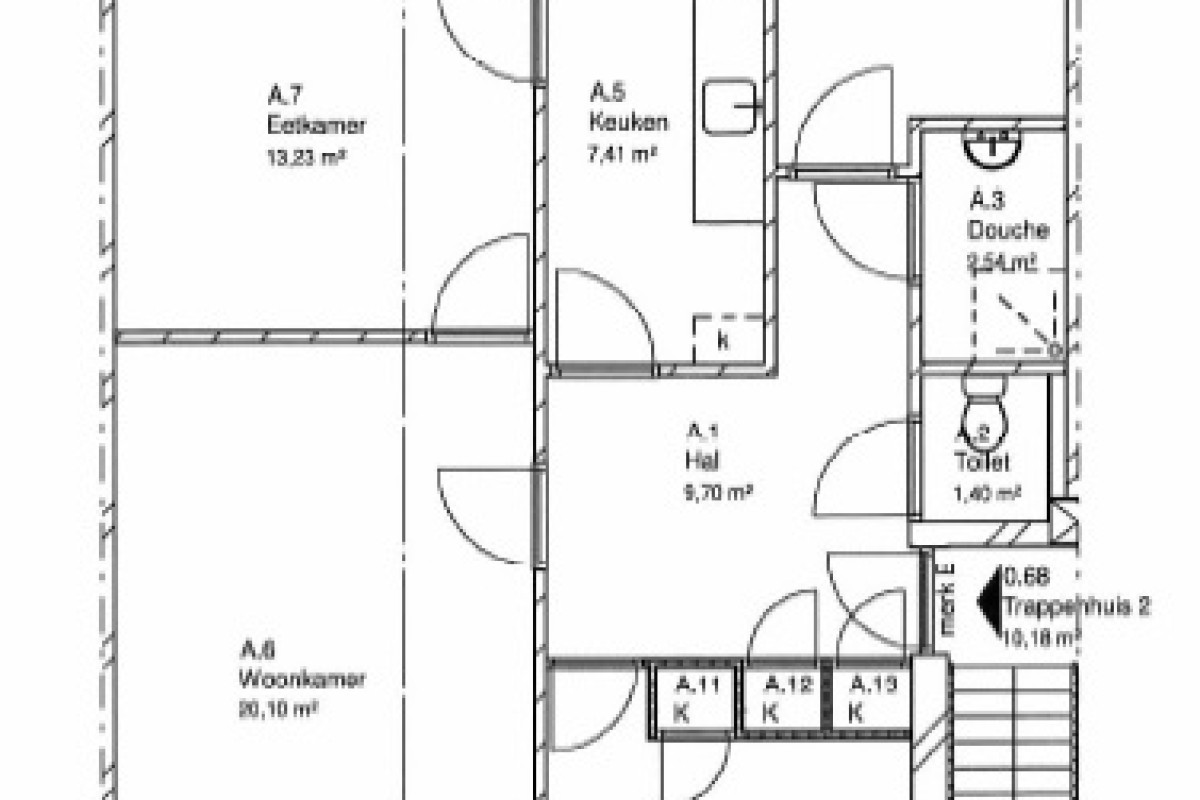
Het appartement heeft een woonoppervlakte van ca. 73m2, is grotendeels voorzien van dubbel glas en heeft een berging op de zolderverdieping en een grote berging op de begane grond. De woonkamer heeft aan beide zijden een balkon en deze bieden beide een ruimtelijk uitzicht. Het balkon aan de voorzijde is gelegen op het zuidwesten.
Indeling
Royale hal, ruime en lichte woonkamer met uitzicht over de Hogenkampsweg.
Lees verderDichte keuken met keukenblok, nette badkamer met douche en wastafel, apart toilet en 2 slaapkamers, waarvan 1 met inbouwkasten.
Via de woonkamer zijn beide balkons bereikbaar.
Algemeen:
* Bijdrage VVE ca Eur 179.82 per maand exclusief voorschot stookkosten van ca. € 80,= per maand.
* Het appartement is voorzien van blokverwarming. Koper dient zelf zorg te dragen voor een warmwatervoorziening.
* Projectnotaris: Het Notarieel
* Anti-speculatiebeding gedurende twee jaar
* Koper is gedurende twee jaar verplicht het gekochte uitsluitend te gebruiken om zelf (met zijn eventuele gezinsleden) te bewonen en het gekochte niet aan derden te verhuren of op andere wijze in gebruik te geven.
De verkoop geschiedt middels een biedingformulier welke bij de bezichtiging aangereikt wordt.
