START VAN DE VERKOOP MIDDELS EEN OPEN HUIS: MAANDAG 15 APRIL 2024 EN VRIJDAG 19 APRIL VAN 15.00 UUR TOT 16:00 UUR. U bent dan zonder afspraak welkom om dit bijzondere object te bezichtigen. Bezichtigingen vooraf of tussendoor zijn helaas niet mogelijk. U dient zich van te voren aan te melden voor het openhuis, dit kan middels de knop bezichtiging aanvragen wij zullen u dan een bevestiging toe mailen.
Deze bijzondere woning (zgn. Zaagtandwoning) is gelegen in de gezellige wijk Assendorp, nabij het park “De Wezenlanden” en het centrum van Zwolle. Het geheel staat op een perceel van maar liefst 961 m2.
De zgn. 'Zaagtandwoningen' zijn even bekend als gewild.
Lees verderMede door de uitstekende ligging en opzet van de wijk vormen de woonblokken een uniek geheel. Trapsgewijs geschakelde woningen staan in een relatief open ruime, met parkachtige doorzichten die zorgen voor een groen karakter. De tuinen liggen aan de voor- en zijkant, stuk voor stuk grote percelen, waardoor het een parkachtige omgeving is en blijft. Een beeldkwaliteitsplan en kleurenschema dragen er samen met de bewoners aan bij dat deze bijzondere wijk zijn karakter behoudt! Ook zijn er spelregels voor het aan- of bijbouwen. Zie hiervoor de uitgebreide uitleg in de brochure.
Indeling:
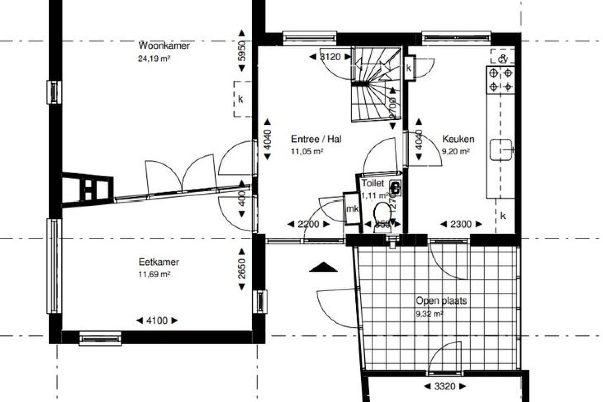
Begane grond:
Ruime hal met trapopgang, toegang tot de kelder van circa 12m2, het toilet, de ruime woonkamer en de dichte keuken. De woonkamer heeft veel lichtinval door de grote raampartij aan de achterzijde. De afgesloten keuken beschikt over een doorgang die toegang biedt naar binnenplaats en berging.
1e Verdieping:
Ruime overloop, 3 slaapkamers, eenvoudige maar nette badkamer voorzien van vaste wastafel, toilet en douche.
2e Verdieping:
Vliering
Algemeen
-Koper is gedurende twee jaar verplicht het gekochte uitsluitend te gebruiken om zelf (met zijn eventuele gezinsleden) te bewonen en het gekochte niet aan derden te verhuren of op andere wijze in gebruik te geven;
-Anti-speculatiebeding gedurende twee jaar;
-Projectnotaris Het Notarieel te Zwolle
