Wij bieden een nette 3-kamer appartement aan op de tweede verdieping van de Boulevardflat met balkon op het zuiden en schuin uitzicht over het Weerwater. Bij het appartement behoort een parkeerplaats in de afgesloten garage in het Souterrain en je beschikt over een eigen privé berging. Het complex is voorzien van een lift. Het appartement is gelegen nabij het Stadshart van Almere met al haar voorzieningen. Op loopafstand bereik je de winkels, theater, boulevard, bioscoop en vele horeca. Tevens direct gelegen aan recreatieplas 'Het Weerwater' waar je heerlijk kunt wandelen, fietsen en watersport kunt beoefenen. Bovendien ben je binnen enkele autominuten op de A6.
Lees verderIndeling begane grond:
Via de Centrale entree met brievenbussen en videofoon installatie bereikt men de lift naar de verdiepingen.
Tweede verdieping:
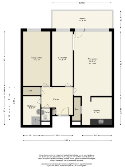
Entree/hal met toegang tot bijna alle vertrekken. Extra ruime living met heerlijk veel licht met toegang tot het ruime balkon gelegen op het Zuiden. De standaard keuken heeft een aanrechtblok met bovenkastjes en een afzuigschouw.
Vanuit de woonkamer heb je toegang tot het ruime balkon van ca. 11 m2, gelegen op het zonnige zuiden. De woonkamer kan vergroot worden door de oorspronkelijke 2e slaapkamer deels bij de woonkamer te trekken.
Vanuit de hal bereik je verder het separaat toilet , een berging, de badkamer en de hoofdslaapkamer. De badkamer is voorzien van douche wastafel en wasmachine aansluiting. Het is ook zeer eenvoudig om middels een kleine aanpassing een wasmachine aansluiting te realiseren in de berging naast de badkamer.
Het gehele appartement is voorzien vinylen vloerbedekking.
De entree en de gangen van het complex zijn in 2021 opgeknapt. De kunststof kozijnen met HR++ zijn tijdens het groot onderhoud in 2019 geplaatst. In dat jaar is ook het gezamenlijk dak geïsoleerd. In 2024 zijn er zonnepanelen geplaatst op het dak door de VVE, deze zorgen voor een reductie van energieverbruik van de algemene ruimtes.
Bijzonderheden:
- Woonoppervlakte ca. 83 m2;
- Twee slaapkamers waarvan een bereikbaar vanuit de woonkamer en vanuit de hal
- Terras op het zuiden (11 m2);
- Kunststof kozijnen met HR ++ glas(2019);
- Eigen parkeerplaats in de garage;
- Separate privé berging;
- Alles gelijkvloers, hierdoor toegankelijk voor ouderen en minder validen;
- VVE bijdrage thans €265,-per maand (appartement, parkeerplaats en berging);
- Oplevering in overleg, kan snel
- Verkoop door professionele partij met vaste notaris
