** English text below **
Woningzoekers opgelet! Heerlijk tweekamer appartement van circa 50 m² met balkon op het zuiden, gelegen in de populaire wijk Bos en Lommer. De woning beschikt over een lichte woonkamer, keuken, een ruim balkon en één slaapkamer. Geniet van het levendige karakter van de buurt, met alle benodigde voorzieningen binnen handbereik!
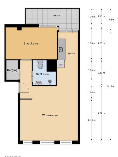
Indeling:
Via het gemeenschappelijke trappenhuis bereikt u het appartement op de vierde verdieping. Via de hal heeft u toegang tot meerdere vertrekken. De slaapkamer van mooi formaat ligt aan de achterzijde en biedt voldoende ruimte voor een tweepersoons bed en kledingkast. Grenzend aan de slaapkamer ligt de badkamer welke voorzien is van een toilet, douche en wastafel.
Lees verderDaarnaast beschikt het appartement over een inpandige berging voor opslag van spullen. Aan de voorzijde van het appartement bevindt zich de ruime woonkamer met raampartij wat voor voldoende licht inval zorgt. Vanuit de woonkamer betreedt u de keuken waar ook de C.V.-ketel is gepositioneerd (Intergas HRE 2021). Vanuit de keuken heeft u toegang tot het ruime balkon gelegen op het zuiden!
Op de begane grond bevindt zich nog een externe bergruimte met elektra aansluiting van 3,8 m², gemeten conform NEN2580 meetcertificaat.
Omgeving:
De woning is gelegen in de populaire wijk Landlust, in stadsdeel West. Geniet van de levendige sfeer met een gevarieerd aanbod van boetiekjes, restaurants, cafés, koffiebars en buurtwinkels, allemaal op loopafstand. Supermarkten en diverse sportfaciliteiten bevinden zich eveneens dichtbij, evenals het Bos en Lommerplein. Ontdek de nabijgelegen groene oases, zoals het Westerpark, Erasmuspark en Rembrandtpark, allemaal op korte fietsafstand. Ook De Hallen en de charmante Jordaan liggen in de directe omgeving. Met trendy hotspots en alle voorzieningen binnen handbereik biedt deze woning de perfecte balans tussen stedelijke levendigheid en de rust van Amsterdamse ontspanning.
Bereikbaarheid:
De woning is uitstekend bereikbaar met het openbaar vervoer. Diverse tram- en busverbindingen bevinden zich in de directe omgeving. Station Sloterdijk ligt op slechts 5 minuten fietsen en tram 19 stopt om de hoek. Daarnaast is er een goede verbinding met buslijn 21 naar het Centraal Station. De ligging ten opzichte van de ringweg A10-west is ook zeer gunstig: via de Haarlemmerweg is deze binnen enkele minuten bereikbaar met de auto.
Vereniging van Eigenaren
De Vereniging van Eigenaren (VvE) bevindt zich in een gezonde en actieve staat en wordt professioneel beheerd door Pro VvE Beheer. Voor deze woning, inclusief berging, zijn de maandelijkse servicekosten vastgesteld op € 155,56 per maand (voor de gehele VvE € 146,54 en voor de berging € 9,02 per maand). De administrateur draagt onder andere zorg voor financieel en administratief beheer, alsmede bestuurlijke en technische ondersteuning.
Grondsituatie
De woning is gelegen op gemeentelijke erfpachtgrond. De erfpacht is vooruitbetaald tot en met 15 november 2039. Op dit recht zijn de Algemene Bepalingen voor voortdurende erfpacht van het jaar 2000 van toepassing.
Bijzonderheden
- Woonoppervlakte 50,1 m² (conform NEN2580 meetcertificaat);
- Bouwjaar 1988;
- Balkon gelegen op het zuiden;
- Erfpacht vooruitbetaald t/m 15-11-2039;
- Energielabel B;
- VvE bijdrage € 155,56 per maand (bijdrage boekjaar 2025);
- Verkoop is alleen bedoeld voor eigen hoofdbewoning door kopers of eigen kind vanaf 18 jaar. De eigenaar/eigen kind vanaf 18 jaar, dient zich in te schrijven op het adres als hoofdbewoner. In de akte wordt een verkoop- en verhuur belemmerende bepaling opgenomen;
- De ouderdoms-, NEN-, asbest- en niet-zelfbewoningsclausule worden opgenomen in de koopovereenkomst;
- Projectnotaris Hartman LMH te Amsterdam;
- Oplevering per direct mogelijk.
-------------------------------------------------------------------------------------------------------------------------------------------------
English text:
Attention home seekers! Lovely two-room apartment of approximately 50 m² with a south-facing balcony, located in the popular Bos en Lommer neighborhood. The property features a bright living room, kitchen, a spacious balcony, and one bedroom. Enjoy the lively character of the area, with all necessary amenities within easy reach!
Layout:
Via the shared staircase, you reach the apartment on the fourth floor. From the hallway, you have access to several rooms. The nicely sized bedroom is located at the rear and offers enough space for a double bed and wardrobe. Adjacent to the bedroom is the bathroom, which is equipped with a toilet, shower, and sink. In addition, the apartment has an internal storage room for storing belongings. At the front of the apartment is the spacious living room with large windows, providing plenty of natural light. From the living room, you enter the kitchen, where the central heating boiler is also located (Intergas HRE 2021). From the kitchen, you have access to the spacious south-facing balcony!
On the ground floor, there is also an external storage room with an electrical connection of 3.8 m², measured according to the NEN2580 measurement certificate.
Area:
The property is located in the popular Landlust neighborhood, in the West district. Enjoy the lively atmosphere with a varied range of boutiques, restaurants, cafés, coffee bars, and local shops, all within walking distance. Supermarkets and various sports facilities are also nearby, as is the Bos en Lommerplein. Discover the nearby green oases, such as Westerpark, Erasmuspark, and Rembrandtpark, all just a short bike ride away. De Hallen and the charming Jordaan are also in the immediate vicinity. With trendy hotspots and all amenities within reach, this home offers the perfect balance between urban vibrancy and the tranquility of Amsterdam relaxation.
Accessibility:
The property is excellently accessible by public transport. Various tram and bus connections are in the immediate area. Sloterdijk Station is just a 5-minute bike ride away, and tram 19 stops around the corner. In addition, there is a good connection with bus line 21 to Central Station. The location in relation to the A10-west ring road is also very favorable: via the Haarlemmerweg, it can be reached by car within a few minutes.
Homeowners' Association:
The Homeowners' Association (VvE) is in a healthy and active state and is professionally managed by Pro VvE Beheer. For this property, including storage, the monthly service costs are set at € 155.56 per month (for the entire VvE €146.54 and for the storage €9.02 per month). The administrator is responsible, among other things, for financial and administrative management, as well as governance and technical support.
Ground situation:
The property is located on municipal leasehold land. The leasehold is prepaid until November 15, 2039. The General Provisions for Continuous Leasehold of the year 2000 apply to this right.
Special features:
- Living area 50.1 m² (according to NEN2580 measurement certificate);
- Year of construction 1988;
- Balcony facing south;
- Leasehold prepaid until 15-11-2039;
- Energy label B;
- VvE contribution €155.56 per month;
- Sale is intended solely for the buyer's own primary residence or their own child from 18 years old. The owner/child from 18 years old must register at the address as the main resident. A clause restricting sale and rental will be included in the deed;
- Age, NEN, asbestos, and non-occupancy clauses will be included in the purchase agreement;
- Project notary Hartman LMH in Amsterdam;
- Available for immediate delivery.
