**English below**
Woningzoekers opgelet! Dit charmante tweekamerappartement van 54 m² is gelegen op een toplocatie in de Staatsliedenbuurt met prachtig uitzicht over water en de kade. Het appartement biedt een ruime woonkamer met open keuken, een slaapkamer, een heerlijk balkon op het westen en een fijne berging van 11,5 m² voorzien van raampartij op de zolderverdieping. Geniet van het levendige karakter van de buurt met alle benodigde voorzieningen binnen handbereik!
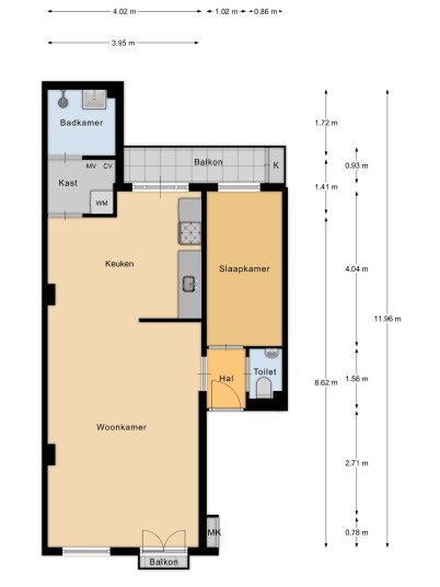
Indeling:
Via het gemeenschappelijke trappenhuis bereikt u het appartement op de derde verdieping. Bij binnenkomst via de voordeur komt u in de hal, die toegang biedt tot verschillende vertrekken.
Lees verderU heeft keuze uit de deur naar het toilet met fonteintje, de slaapkamer aan de achterzijde, of de ruime woonkamer aan de voorzijde voorzien van een Frans balkon en een prachtig uitzicht over het water. Aan de achterzijde bevindt zich de open keuken, die toegang biedt tot het balkon van 4,3 m², gelegen op het westen. Via een kleine berging, waarin zich de aansluiting voor de wasmachine, de mechanische ventilatieunit en de cv-ketel (bouwjaar 2015) bevinden, komt u in de badkamer, die is uitgerust met een douche en wastafel.
Tot slot is er een berging aanwezig op de zolderverdieping van 11,5 m², gemeten conform het NEN-2580 meetcertificaat.
Omgeving en bereikbaarheid:
De Staatsliedenbuurt is een levendige en bruisende buurt met het centrum van de stad op fietsafstand. Het appartement is prachtig gelegen aan water op een super leuke locatie nabij de Jordaan en het Westerpark waar diverse bezienswaardigheden en belevenissen te vinden zijn. In het park zijn onder andere een bioscoop, speeltuin, restaurants, theater en diverse uitgaansgelegenheden waaronder evenementenlocatie Westergasfabriek. In de directe omgeving bevinden zich allerlei hippe winkels en horecagelegenheden met terrassen en diverse gezellige Italiaanse restaurants. Voor de dagelijkse boodschappen zijn de Albert Heijn en de Dirk van den Broek op loopafstand gelegen. Scholen en kinderdagverblijven bevinden zich eveneens op loopafstand.
Het appartement is goed bereikbaar met het openbaar vervoer. Op de Van Limburg Stirumstraat en Van Hallstraat zijn meerdere tram- en bushalten richting o.a. Amsterdam Centraal en het Leidseplein te vinden. Zowel NS-station Amsterdam Centraal als station Sloterdijk zijn op circa 10 minuten fietsafstand van het appartement gelegen. Ook is de ligging ten opzichte van de ringweg A-10 west zeer gunstig. Met de auto is deze binnen enkele minuten te bereiken via de Haarlemmerweg.
Vereniging van Eigenaren:
De Vereniging van Eigenaren (VvE) bevindt zich in een gezonde en actieve staat en wordt professioneel beheerd door Pro VVE Beheer. Voor deze woning zijn de maandelijkse servicekosten vastgesteld op € 95,05 per maand. De administrateur draagt onder andere zorg voor financieel en administratief beheer, alsmede bestuurlijke en technische ondersteuning.
Grondsituatie:
De woning is gelegen op gemeentelijke erfpachtgrond. De erfpacht is vooruitbetaald tot en met 31 juli 2055. Op dit recht zijn de Algemene Bepalingen voor voortdurende erfpacht van het jaar 2000 van toepassing.
Bijzonderheden:
- Woonoppervlakte 54,0 m² conform NEN2580 meetcertificaat;
- Fijne berging met raampartij op de zolderetage van 11,5 m²;
- Bouwjaar 1905;
- Erfpacht vooruitbetaald t/m 31 juli 2055;
- Balkon gelegen op het westen;
- Energielabel C;
- Servicekosten bedragen € 95,05 per maand (bijdrage boekjaar 2025);
- Unieke ligging aan de Kostverlorenvaart;
- Verkoop is alleen bedoeld voor eigen hoofdbewoning door kopers of eigen kind vanaf 18 jaar. De eigenaar/eigen kind vanaf 18 jaar, dient zich in te schrijven op het adres als hoofdbewoner. In de akten wordt een verkoop- en verhuur belemmerende bepaling opgenomen;
- De ouderdoms-, NEN-, asbest- en niet-zelfbewoningsclausule worden opgenomen in de koopovereenkomst;
- Projectnotaris Hartman LMH te Amsterdam;
- Oplevering per direct mogelijk.
---------------------------------------------------------------------------------------------------------------
English text:
Attention home seekers! This charming one-bedroom apartment of 54 m² is located in a prime spot in the Staatsliedenbuurt, offering beautiful views over the water and quay. The apartment features a spacious living room with an open kitchen, a bedroom, a lovely west-facing balcony, and a convenient storage room of 11.5 m² with windows on the attic floor. Enjoy the vibrant character of the neighborhood with all necessary amenities within easy reach!
Layout:
Through the shared staircase, you reach the apartment on the third floor. Upon entering through the front door, you enter the hallway, which provides access to various rooms. You can choose from the door to the toilet with a sink, the bedroom at the back, or the spacious living room at the front with a French balcony and a stunning view over the water. The open kitchen is located at the rear and provides access to the 4.3 m² west-facing balcony. A small storage room contains the washer hookup, mechanical ventilation unit, and central heating system (built in 2015), and leads to the bathroom, which is equipped with a shower and sink.
Finally, there is a storage room in the attic floor measuring 11.5 m², as per the NEN-2580 measurement certificate.
Location and accessibility:
The Staatsliedenbuurt is a lively and bustling neighborhood, within cycling distance of the city center. The apartment is beautifully located by the water in a super nice spot near the Jordaan and Westerpark, where various attractions and activities can be found. The park features a cinema, playground, restaurants, theater, and various nightlife spots, including the event venue Westergasfabriek. In the immediate vicinity, you'll find trendy shops, cafes with terraces, and cozy Italian restaurants. For daily groceries, Albert Heijn and Dirk van den Broek are within walking distance. Schools and daycare centers are also within walking distance.
The apartment is easily accessible by public transport. Multiple tram and bus stops on Van Limburg Stirumstraat and Van Hallstraat are within walking distance, providing routes to Amsterdam Centraal and Leidseplein. Both Amsterdam Centraal railway station and Sloterdijk station are about a 10-minute bike ride away. The location is also very convenient for access to the A-10 ring road west. By car, it's only a few minutes via Haarlemmerweg.
Homeowners' Association:
The Homeowners' Association (VvE) is in a healthy and active state and is professionally managed by Pro VVE Beheer. The monthly service charges for this property are €95.05. The administrator handles the financial and administrative management, as well as providing governance and technical support.
Ground situation:
The property is located on municipal leasehold land. The leasehold has been prepaid until July 31, 2055. The General Provisions for continuous leasehold from the year 2000 apply to this right.
Details:
- Living area of 54.0 m² according to NEN2580 measurement certificate;
- Convenient storage room with windows on the attic floor of 11.5 m²;
- Built in 1905;
- Leasehold prepaid until July 31, 2055;
- West-facing balcony;
- Energy label C;
- Service charges are €95.05 per month (contribution for the 2025 financial year);
- Unique location along the Kostverlorenvaart;
- Sale is intended for primary residence only, either by the buyer or their own child aged 18 or older. The owner or child must register as the primary resident at the address. A restriction clause will be included in the deed of sale and rental;
- Age, NEN, asbestos, and non-self-occupancy clauses will be included in the purchase agreement;
- Project notary Hartman LMH in Amsterdam;
- Immediate delivery possible.
