Home / Woning huren / Aanbod / Eperweg 4606 't Harde

Eperweg 4606

Beschikbaar

't Harde

€ 925 per maand

't harde


Type woning
Appartement

Woon oppervlakte
47 m²

Totaal
47 m²

Aantal kamers
3

Over de woning

- Beschikbaar voor de vitale 55-plusser! -

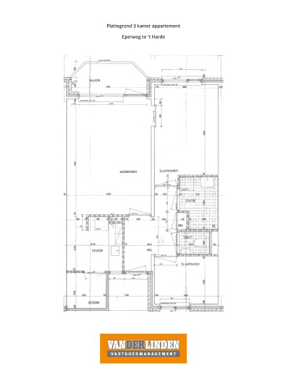
Dit drie kamer senioren appartement is gelegen op de begane grond van het woongebouw de Clockenslag. Het pand beschikt over twee woonlagen, een lift en is gebouwd in 1988.

Wanneer u het appartement binnenkomt via de hal heeft u toegang tot het seperate toilet, badkamer, slaapkamers en woonkamer met half open keuken welke toegang geeft tot de berging. Vanuit de woonkamer kunt u het balkon betreden. - Kenmerken Eperweg 46-06
- Voorschot servicekosten € 95,- per maand
- De woning is voorzien van energielabel B
- Drie kamer appartement (2 slaapkamers)
- Gelegen op de begane grond
- Parkeren is mogelijk op het nabijgelegen openbare parkeerterrein
- Fietsenberging aanwezig voor het stallen van fietsen en eventueel een scootmobiel

- Inkomensrichtlijnen-
Voor deze sociale huurwoning gelden er inkomenseisen. U kunt een sociale huurwoning huren als uw inkomen passend is bij de huur. De toewijzing vind plaats door middel van passend toewijzen. Er is voor deze woning sprake van een minimale en een maximale inkomensgrens om in aanmerking te kunnen komen. De inkomensgrenzen 2026 kunt u vinden via
https://www.rijksoverheid.nl/actueel/nieuws/2025/11/25/indexering-inkomensgrenzen-woningcorporaties-maximale-huurprijsgrenzen-en-huurtoeslagparameters-2026.

Let op: het aanvragen van huursubsidie is afhankelijk van de kale huurprijs, servicekosten en uw inkomen. Om te zien of u in aanmerking komt, kunt u een proefberekening maken bij de Belastingdienst.

- Wilt u in aanmerking komen voor deze woning? -
Bent u enthousiast geworden over deze woning en voldoet u aan de inkomensrichtlijnen? Schrijf u dan in via vanderlinden.nl. als woningzoekende.

Bij het selecteren van de meest geschikte kandidaat maken wij enkel gebruik van objectieve selectiecriteria zoals leeftijd, de hoogte van het inkomen in relatie tot de hoogte van de huur, gezinsomvang en soortgelijke criteria. Hierbij maken wij in geen enkele situatie positieve of negatieve uitzonderingen op basis van geslacht, huidskleur, achternaam, geaardheid, afkomst, geloof of etniciteit van de woningzoekende.

Als er meerdere, vergelijkbare inschrijvingen op een woning zijn, dan zal er een willekeurig dossier gekozen worden op volgorde van binnenkomst. U ontvangt hier dan vanzelf bericht over. Mocht u niets hebben vernomen dan bent u helaas niet geselecteerd. U kunt uiteraard altijd contact met ons opnemen waarom er gekozen is voor een andere kandidaat. Wanneer u zoveel mogelijk kans wilt maken op een woning, raden we u aan om meerdere voorkeuren door te geven indien u in meerdere woningen geïnteresseerd bent.

- Goed om te weten -
- Getoonde foto's zijn van een modelwoning en niet van de specifieke woning zelf.
-De huurovereenkomst wordt aangegaan voor onbepaalde tijd. De huur is maandelijks opzegbaar, de opzegtermijn bedraagt één maand.
Alle informatie met betrekking tot de woning is met zorg samengesteld. Deze is echter indicatief en er kunnen geen rechten aan ontleend worden.

Hier ga je wonen

Eperweg 4606 't Harde

MAP

Plattegronden

Ja, ik heb interesse in deze woning

Inloggen in mijn IDD accountHeb je al een IDD account? Log dan nu in om je interesse in deze woning aan te geven.

Heb je nog geen IDD account? Vul dan onderstaand formulier in, we maken dan direct ook een IDD account voor je aan.

Je contactgegevens

   

Je inkomensgegevens

Huidige woonsituatie

Je partner

* verplichte velden