Home / Buy a home / Houses for sale / Nederlandstraat 162 Almere

Nederlandstraat 162

ONDER BOD A

AlmerePoort

€ 525.000 k.k.

Almere Poort


Type of property
Tussenwoning

Surface
126 m²

Plot
124 m²

Bedrooms
4

Bathrooms
1

Year of construction
2015

About the house

Move-in Ready Family Home in Almere Poort: Four Bedrooms, Walk-in Closet, Garden, and Rooftop Terrace!

Are you looking for a modern home in the popular Europakwartier of Almere Poort? This beautifully maintained family house (126 m²), built in 2015, offers everything you need for comfortable living:

- Four bedrooms, including a spacious master bedroom with walk-in closet
- Sunny backyard facing east and a generous rooftop terrace facing west
- Energy-efficient living with energy label A and ten solar panels
- Modern kitchen with induction cooktop, combination oven, dishwasher, and boiling water tap
- Luxury bathroom with walk-in shower, double washbasin, and second toilet
- Underfloor heating on the ground floor and a stylish herringbone PVC floor
- Possibility to extend for additional living space
- Freehold property (no ground lease)
- Ample public parking directly in front of the house

Start your day with a cup of coffee in the sunny garden and end it with a glass of wine on the rooftop terrace. Children can play safely in the playground located diagonally across the street, while you enjoy peace and privacy in your own green oasis. Parking is never an issue — there’s plenty of public parking available right outside.

Layout

Ground floor
Entrance hall with meter cupboard, toilet, and access to the bright living room with large windows. The floor is finished with a herringbone-pattern PVC floor and features comfortable underfloor heating. At the front of the house is the modern kitchen, equipped with an induction cooktop, combination oven, dishwasher, fridge with freezer compartment, extractor hood, and boiling water tap.

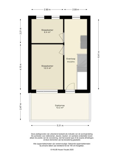
First floor
Landing with access to two spacious bedrooms, including the master bedroom with walk-in closet. The modern bathroom is fitted with a walk-in shower, double washbasin, and second toilet.

Second floor
Two additional rooms, one of which is currently used as an office. This floor also houses the connections for the washing machine and dryer, the mechanical ventilation unit, and the inverter for the solar panels. From here, you have direct access to the rooftop terrace.
An extra plus: there is enough space to create a second bathroom.

Garden

The backyard faces east, is low-maintenance, and offers plenty of space to enjoy the sun. At the back of the garden, you’ll find a storage shed and a back entrance.

Location

The home is located in the Europakwartier area of Almere Poort — a quiet and family-friendly neighborhood with a playground right across the street (without noise disturbance). Within walking distance, you’ll find Cascade Park, forest, dunes, Almeerderstrand, and all daily amenities such as supermarkets, shops, childcare, and schools.
The Almere Poort train station and A6 motorway are easily accessible — you can reach Amsterdam in just 20 minutes and Utrecht in about 30 minutes.

Key features
- Built in 2015
- Living area: 126 m²
- Energy label A
- Ten solar panels
- Underfloor heating on the ground floor
- Freehold property (no ground lease)
- Option to extend the house
- Move-in ready
- Ample public parking

In short: a comfortable, modern home in a prime location in Almere Poort. Don’t miss this opportunity — schedule a viewing soon!

Want to know more?

Stephan Steenbekkers
Junior Makelaar.

Nederlandstraat 162 Almere

MAP

Video

Interested in this property?

What can we do for you?

Contact information