Home / Buy a home / Houses for sale / Kikkenstein 2719 Amsterdam

Kikkenstein 2719

BESCHIKBAAR C

AmsterdamBijlmermuseum, Stadsdeel Zuidoost

€ 330.000 k.k.

Amsterdam Bijlmermuseum, Stadsdeel Zuidoost


Type of property
Appartement

Surface
95 m²

Bedrooms
3

Bathrooms
1

Year of construction
1970

About the house

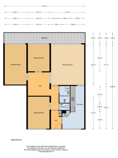
Attention home seekers! Spacious four-room apartment of approximately 95 m², featuring three bedrooms, a large living room, and a kitchen. The apartment has a full-width south-facing balcony and is located in a quiet, green residential area with plenty of open space.

Layout:
Via the communal stairwell you take the elevator to the seventh floor, after which you reach the apartment via a shared gallery. Upon entering, you step into a hallway that provides access to the meter cupboard, the kitchen, and the rest of the apartment. At the front of the property is the first generously sized bedroom, as well as the kitchen, which can still be finished to your own taste and offers sufficient space to create a dining area. At the rear you will find the spacious living room, which provides access to the 14.3 m² balcony running across the full width of the apartment and facing south.

Through a central hallway you reach the other two bedrooms. The bathroom is equipped with a shower, washbasin, and a connection for a washing machine. The toilet, with a small washbasin, is located in a separate room.
On the ground floor, the apartment also includes a storage room of 5.9 m², measured in accordance with the NEN2580 measurement certificate.

Surroundings and accessibility:
This apartment is located in a quiet and green area in Amsterdam-Zuidoost, close to the De Kameleon shopping center for all daily groceries. Public transport connections and access roads are excellent. Zuidoost is a dynamic district with extensive facilities in the areas of sports, culture, and education.

Homeowners’ Association (VvE):
The Homeowners’ Association (VvE) is healthy and active and is professionally managed by Pro VVE Beheer. For this apartment, including the advance payment for heating costs, the monthly service charges amount to approximately €480.55 per month (€339.26 for the entire VvE and €141.30 as an advance for heating costs). The administrator is responsible, among other things, for financial and administrative management as well as board-level and technical support.

Land lease situation:
The apartment is situated on municipal leasehold land. The ground lease has been paid in advance until 31 August 2053. The General Provisions for Continuous Leasehold of the year 2000 apply to this right.

Details:
- Living area 94.7 m² (NEN2580 measurement report available);
- Storage room on the ground floor of 5.9 m²;
- Year of construction: 1970;
- Full-width south-facing balcony;
- Energy label C;
- VvE contribution €339.26 excluding heating costs of €141.30 per month (contribution financial year 2025);
- Ground lease paid in advance until 31 August 2053;
- Municipally protected cityscape;
- Sale is intended exclusively for owner-occupancy by the buyer or the buyer’s own child aged 18 or older.
The owner / child aged 18 or older must register at the address as their main residence.
A clause restricting sale and rental will be included in the deed of sale;
Age clause, NEN clause, asbestos clause, and non-owner-occupancy clause will be included in the purchase agreement;
- Project notary: Hartman LMH, Amsterdam;
- Available immediately.

Want to know more?

Remie Broks
Medewerker Commerciële Binnendienst.

Kikkenstein 2719 Amsterdam

MAP

Interested in this property?

What can we do for you?

Contact information