Home / Buy a home / Houses for sale / Havenkant 24 Biddinghuizen

Havenkant 24

BESCHIKBAAR B

Biddinghuizen

€ 425.000 k.k.

Biddinghuizen


Type of property
Twee onder een kapwoning

Surface
137 m²

Plot
200 m²

Bedrooms
3

Bathrooms
2

Year of construction
2006

About the house

Let op! Deze vraagprijs betreft een "Bieden vanaf vraagprijs".

Deze jonge en volledig geïsoleerde woning is op een rustige en gewilde locatie gelegen aan de rand van Biddinghuizen. De ligging in het hofje biedt een autoluwe straat direct aan de vaarroute "de Hoge Vaart". Het perceel van 200m2 biedt een kleine voortuin en volledig ommuurde onderhoudsarme achtertuin. Het is mogelijk om een auto op eigen grond te parkeren, waarbij het hofje eveneens ruime parkeergelegenheid biedt. Op loopafstand zijn de winkels en het gezondheidscentrum aanwezig zijn. Tevens zijn uitvalswegen naar Zeewolde, Harderwijk en Zwolle nabij gelegen en geeft het nabij gelegen Wandelbos de mogelijkheid voor een heerlijke boswandeling. Indeling:

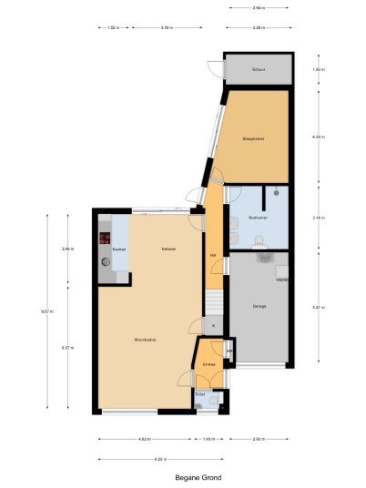
Begane grond: overdekt entree, hal met garderobe, toiletruimte met hangcloset en fonteintje, meterkast. De straatgerichte woonkamer is ruim van opzet en geeft uitzicht op het hofje. Aan de achterzijde van de woning is de eethoek gelegen met aansluitende de hoek opgestelde keuken welke voorzien is van een groot werkblad en ingebouwde koelkast, oven, vaatwasser, inductiekookplaat, combimagnetron, close-in-boiler en vlakscherm afzuigkap. Een schuifpui geeft toegang tot de onderhoudsarme tuin. Een deur geeft toegang tot de 2e hal naar de ruime slaapkamer en badkamer. De badkamer beschikt over een ruime inloopdouche, 2e hangcloset en wastafel. Binnendoor naar de inpandige geïsoleerde garage welke beschikt over een betonvloer, wasmachineaansluiting en sectionaaldeur naar de oprit. Een 2e schuifpui geeft de mogelijkheid om vanuit de slaapkamer de tuin te betreden. Achterin de tuin is tevens een inpandige stenen berging gesitueerd waar u de tuinmeubelen e.o. kan plaatsen. De tuin is vanuit de keuken alsmede de slaapkamer te betreden en onderhoudsarm aangelegd. De begane grond is voorzien van een tegelvloer met vloerverwarming.

Eerste verdieping: vast trap naar de overloop met aansluitend 2 mooie slaapkamers, een ruime berging en de 2e badkamer. De slaapkamer aan de voorzijde van de woning is heerlijk licht een heeft tevens een vlizotrap naar de ruime bergzolder. De badkamer is voorzien van een douche, wastafel en 3e toilet. Aan de achterzijde van de woning is een 3e slaapkamer met grote dakkapel gesitueerd. Aan de overloop geeft en grote inpandige berging de opstelplaats voor de nieuwe c.v.-ketel (Intergas HR 2024) alsmede de mechanische ventilatie.

Tweede verdieping: vlizotrap naar ruime bergzolder.

* Bouwjaar: 2006, perceeloppervlakte: 200m2
* Volledig geïsoleerd en goed onderhouden
* Slaapkamer en badlkaamer op de begane grond
* 2 badkamer en 3 slaapkamers
* Rustige ligging in hofje
* Nieuwe Intergas HR c.v.-ketel 2024
* Onderhoudsarme ommuurde tuin
* Ruime parkeergelegenheid voor de deur
* Energielabel B
* Aanvaarding in overleg, medio juli 2025
* Bij verkoop hanteren wij een NVM koopakte model 2023
* Makelaardij Van der Linden

Het verkoopproces verloopt in zijn geheel via MOVE.nl en daarmee ook het biedingsproces. Biedingen dienen via MOVE te worden ingediend. U ontvangt op het moment dat u een afspraak voor bezichtiging maakt, inloggegevens voor een MOVE account. Via dat account kunt u alle benodigde informatie en documenten inzien en, indien gewenst, een bod uitbrengen.

Deze informatie is door ons met de nodige zorgvuldigheid samengesteld. Onzerzijds wordt echter geen enkele aansprakelijkheid aanvaard voor enige onvolledigheid, onjuistheid of anderszins, dan wel de gevolgen daarvan. Alle opgegeven maten en oppervlakten zijn indicatief.

Want to know more?

Bart Wijnands
Directeur en Register Makelaar/Taxateur.

Havenkant 24 Biddinghuizen

MAP

Interested in this property?

What can we do for you?

Contact information