Randstad 22 51

BESCHIKBAAR

Almere

€ 1.200.000 k.k.

Almere

About Randstad 22 51 Almere

Locatie
Bedrijvenpark Randstad van 10,5 hectare groot bestaat uit vele gerenommeerde bedrijven. Er zijn veel vestigingen van medische/zorgbedrijven, advieskantoren, een aantal autodealers, garage- en reparatiezaken. In de directe omgeving bevinden zich het zakencentrum, waaronder het WTC en de Eurotoren.

Bedrijvenpark Randstad ligt direct aan de Landdrostdreef en Randstaddreef. Door de gunstige centrale ligging is het zowel per openbaar vervoer als met de auto uitstekend bereikbaar. Het kantorenpark ligt op loopafstand van het NS station Almere Centrum en het centrum van Almere. Alle voorzieningen zijn binnen handbereik.

Bereikbaarheid
Dankzij de goede ligging ben je slechts enkele minuten van de A6 verwijderd. Via de A6 is er een snelle verbinding met Amsterdam, Utrecht en Lelystad.

Het NS station Almere Stad bevindt zich op loopafstand.

Indeling object
Deze ruime bedrijfsruimte van ongeveer 468 m² op de begane grond biedt de ideale combinatie van showroom, kantoorruimtes, opslag en werkplekken.

Entree, hal met toegang tot de meterkast, trap naar de verdieping en een deur naar de showroom. Via de showroom bereikt u verschillende kantoorruimtes van respectievelijk 10 m² en 12 m² en het magazijn. De werkruimte van circa 112 m² biedt veel mogelijkheden voor uiteenlopende bedrijfsactiviteiten. Vanuit de werkruimte is er toegang tot diverse opslagruimtes, personeelsruimte, toiletten en een carport.

De eerste verdieping
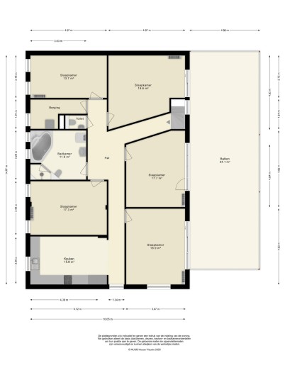
Via de vaste trap bereikt u de woonruimte op de eerste verdieping, met een totale woonoppervlakte van circa 149 m².
Overloop met toegang tot een berging, een keuken, vijf in grootte variërende (slaap)kamers en een badkamer.
Vanuit twee van de de (slaap)kamer heeft u toegang tot het ruime balkon van maar liefst circa 64 m².

Via de vaste trap bereikt u de showroom op de eerste verdieping, met een totale oppervlakte van circa 102 m².

Kadastrale gegevens
Almere O 5152, Kadastrale grootte 1.200 m²

Bouwjaar
1997

Voorzieningen
Begane grond:
- Showroom
- Kantoor- en vergaderruimte
- Magazijn en opslagruimte
- Werkruimte
- Toiletten
- Carport

1e verdieping:
- Showroom
- Woonruimte met keuken
- 5 (slaap)kamers
- Badkamer
- Balkon

Parkeren
Parkeren op eigen terrein

Beschikbaarheid
In overleg.

Vraagprijs
€ 1.200.000,00 k.k.

Informatie
Van der Linden Bedrijfsmakelaars B.V.
Randstad 2301
1314 BN Almere
tel: 036-5330077

Need more info?

Jeroen Dijkstra
Directeur Bedrijfsmakelaardij en Register Makelaar.

Location of this property

Randstad 22 51 Almere

MAP

Floorplans

Interested in this commercial property?

What can we do for you?

Contact us

Van der Linden