Docklandsweg 23

VERHUURD

Amsterdam

€ 235 p/m² p/j

Amsterdam

About Docklandsweg 23 Amsterdam

In de stadswijk Aan het IJ kun je wonen, ontspannen en ondernemen. De nieuwe wijk ligt tussen het IJ en de Van der Pekbuurt in Amsterdam Noord, vlak achter EYE Filmmuseum en het Schegpark. Het Schegpark is een nieuw te ontwikkelen park dat centraal in het gebied Overhoeks komt te liggen. De Docklandsweg wordt de commerciële ader door de wijk en biedt plaats aan kleinschalige horeca, dagelijkse verszaakjes, leuke winkels en creatieve bedrijven. Met de pont vanaf Amsterdam Centraal sta je zo in de nieuwe wijk en wandel je via het Schegpark naar de Docklandsweg. Een ideale plek dus!

De Docklandsweg moet een gezellige en praktische winkelstraat worden met een ontspannen sfeer. Denk hierbij aan kleinschalige horeca zoals bijvoorbeeld een espressobar of croissanterie, een traiteur, bakker of slager en winkels zoals een boekhandel, bloemenzaak, fietswinkel of vintage (concept)stores. Daarnaast is er plek voor zorg, zoals bijvoorbeeld een fysiotherapie- of tandartspraktijk. We zijn op zoek naar een mooie aanvulling op wat er al is, onder andere in de Strip aan het Schegpark, maar ook in de Van der Pekbuurt en andere winkelgebieden in de buurt.

LOCATIE
De commerciële ruimten liggen in de plint van de woongebouwen aan de Docklandsweg, die door toonaangevende architecten zijn ontworpen.

BEREIKBAARHEID
Per auto:
Het object is uitstekend bereikbaar middels de S118 richting de ringweg A10 Noord-West en richting de A8 en S116 richting de ringweg A10 noord en de IJtunnel en het centrum van Amsterdam.

Per openbaar vervoer:
Door de uitstekende ligging van het gebouw is de bereikbaarheid met het openbaar vervoer zeer goed. Het object is gunstig gelegen in Amsterdam Noord ten opzichte van Amsterdam Centraal station. Het is zowel met de tram, bus, metro en pont goed te bereiken.

BESTEMMING
De bestemming is Gemengd-1: (Eventueel kantoren (met baliefunctie)), bedrijven, winkels, horeca (I, III, IV), consumentenverzorgende dienstverlening, maatschappelijke voorzieningen.

METRAGE
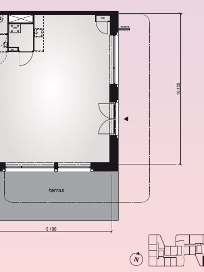
The Bow heeft een totaal metrage van circa 302,6 m² b.v.o. commerciële bedrijfsruimte gelegen op de begane grond waarvan het volgende beschikbaar is:
- Unit 2: c.a. 108,7 m2 v.v.o.
- Unit 3: c.a. 76,0 m2 v.v.o. met terrasmogelijkheid.
De ruimten zijn geschikt voor kleinschalige horeca, dagelijks verszaakjes en winkels.

BESCHIKBAARHEID
- oplevering c.a. voorjaar 2023.
De rest van de gebouwen, aan de andere zijde van de Docklandsweg, zijn nog in ontwikkeling. Deze gebouwen zijn naar verwachting tussen 2023 en 2025 gereed.

HUURPRIJS
EUR. 235,- per m² per jaar te vermeerderen met servicekosten en BTW.

SERVICEKOSTEN
Nader te bepalen.

ZEKERHEIDSTELLING
Huurder dient een waarborgsom te voldoen ter grootte van een bedrag van ten minste drie maanden huur inclusief BTW en servicekosten.

HUURTERMIJN
5+5 jaar. Met een opzegtermijn van 12 maanden.

OPLEVERNIVEAU
De commerciële ruimten zullen casco worden opgeleverd. Je kunt deze ruimten geheel naar eigen wens indelen en afwerken. De plafonds in de commerciële ruimten zijn hoog, namelijk circa 4,40 meter. De gevels zijn voorzien van grote glaspuien, waardoor je een optimaal zicht hebt naar binnen én naar buiten. Aan de Docklandsweg hangen haaks op de gevel van alle gebouwen dezelfde strakke borden voor signing, zodat de winkelstraat eenheid uitstraalt.

BTW
Huurder verklaart het gehuurde voor tenminste 90% te zullen gebruiken voor prestaties die recht geven op aftrek van omzetbelasting.

VOORBEHOUD
Voorbehoud van goedkeuring verhuurder. De vermelde informatie is van algemene aard en is niet meer dan een uitnodiging om in onderhandeling te treden. Aan de inhoud van deze informatie kunnen geen rechten worden ontleend.

INFORMATIE
Van der Linden Bedrijfsmakelaars
onderdeel Van der Linden Groep
Bos en Lommerplein 309-311
1055 RW AMSTERDAM
Tel: 020-5 712 712
Vestigingen: Amsterdam, Almere, Lelystad, Haarlem, Dronten, Zwolle

Need more info?

MEDEWERKER MET RWId 1027413 NIET GEVONDEN

Location of this property

Docklandsweg 23 Amsterdam

MAP

Floorplans

Interested in this commercial property?

What can we do for you?

Contact us

Van der Linden