Deze kantoorruimte bevindt zich op de begane grond van het gebouw Haag en Veld en ziet er zeer representatief uit. De kantoorruimte is voorzien van een eigen entree en achterdeur en veel ramen rondom. Het kantoor is verdeeld in 3 aparte kamers en een kleine pantryvoorziening. De kantoorruimte is gelegen in een echte woonomgeving en is zeer goed bereikbaar met zowel eigen vervoer als openbaar vervoer.
LOCATIE
Gelegen op de begane grond in het gebouw Haag en Veld. Binnen 10 minuten lopen vanaf het object is onder andere het Bijlmerplein bereikbaar, station Amsterdam Bijlmer ArenA, metrostation Bullewijk en het Nelson Mandelapark.
BEREIKBAARHEID
Eigen vervoer:
De bereikbaarheid van het object is goed.
Lees verderHet object is gelegen in de plint van een wooncomplex in Amsterdam Zuidoost. Het is met de auto is goed bereikbaar via de S111 en S112 vanuit Amsterdam, A10 oost, de A2 en de A9.
Openbaar vervoer:
Op ca. 5 minuten loopafstand is het openbaarvervoer gelegen. Zowel in de Foppingadreef als de Karspeldreef bevinden zich diverse bushaltes en iets verder gelegen op de Karpeldreef bevindt zich metrohalte Bullewijk of aan de andere kan NS-station Amsterdam Bijlmer Arena met alle OV voorzieningen.
PARKEREN
Op de naastgelegen parkeerplaats voldoende plaatsen beschikbaar.
BESTEMMING
Binnen de bestemming is er het volgende mogelijk:
- Maatschappelijke voorzieningen.
(Kinderdagverblijven / buitenschoolse opvang en horeca zijn uitgesloten).
METRAGE
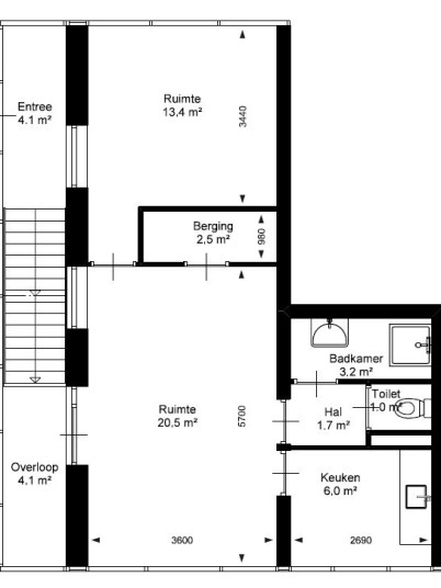
De ruimte heeft een oppervlak van ca. 57,32 m² v.v.o. en is gelegen op de begane grond.
OPLEVERNIVEAU
Deze ruimte zal op casco basis worden verhuurd. Het object is op dit moment voorzien van o.a.:
- Zeer nette kantoor ruimte op de 1ste verdieping.
- Eigen entree aan de straatzijde.
- Veel ramen rondom.
- Toiletvoorziening.
- Huidige vloerbedekking.
- Huidige verlichting.
- Huidige kamerindeling.
- Huidige pantryvoorziening.
HUURPRIJS
€ 745,- per maand te vermeerderen met servicekosten en BTW.
SERVICEKOSTEN
€ PM.
Huurder zal direct belast worden door de nutsbedrijven. Mocht dit om technische of andere redenen niet mogelijk zijn dan zal een nog vast te stellen voorschot worden geheven waarbij aan het einde van een periode verrekening plaats vindt op basis van de werkelijke kosten.
BETALINGEN
Huur, servicekosten en BTW per maand vooruit.
ZEKERHEIDSSTELLING
Een waarborgsom van ten minste 3 maanden huur, servicekosten en BTW.
HUURTERMIJN
5 + 5 jaar, andere periodes in overleg. Opzegtermijn 12 maanden.
BESCHIKBAARHEID
In overleg.
BTW
Huurder is BTW-plichtig. Er zal BTW over de huur verschuldigd zijn. Huurder verklaart voor tenminste 90% met BTW belaste prestaties te verrichten in het gehuurde.
ENERGIEKOSTEN
Huurder zal direct belast worden door de nutsbedrijven. Mocht dit om technische of andere redenen niet mogelijk zijn dan zal een nog vast te stellen voorschot worden geheven waarbij aan het einde van een periode verrekening plaats vindt op basis van de werkelijke kosten.
HUUROVEEREENKOMST
Huurovereenkomst kantoorruimte en andere bedrijfsruimte in de zin van artikel 7:230a BW gebaseerd op het model door de Raad voor Onroerende Zaken (ROZ).
INFORMATIE
Van der Linden Bedrijfsmakelaars,
onderdeel Van der Linden Groep
Bos en Lommerplein 309-311
1055 RW AMSTERDAM
Tel: 020-5 712 712
