Deze kantoorruimte is gelegen in de plint van een groot wooncomplex in Amsterdam Oost in de wijk Transfaalbuurt. Het kantoor is voorzien van een eigen entree en twee kantoorruimtes die beide zijn voorzien van grote ramen en voor veel daglichttoetreding zorgen. Aan de achterzijde bevindt zit een tuin. Het gebouw is goed zichtbaar vanaf de weg en zeer goed bereikbaar met zowel eigen vervoer als openbaar vervoer. Deze commerciële ruimte is gelegen op loopafstand van station Amsterdam Amstel. In de nabijheid bevinden zich verschillende lokale horeca zaken en winkels waaronder de Albert Heijn.
BEREIKBAARHEID
Per auto
Met de auto is het uitstekend bereikbaar vanaf de ringweg A10 zuid via de S112 en de Wibautstraat.
Lees verderMaar ook de A1, A2 en A4 zijn op zeer korte afstand gelegen en uitstekend bereikbaar.
Per openbaar vervoer:
In de nabijheid van het object bevindt zich onder andere station Amsterdam Amstel met diverse openbaar vervoersverbindingen. Van hier vertrekt de trein, tram, metro en bus in diverse richtingen van Nederland en Amsterdam.
PARKEREN
Er is, tegen betaling, voldoende openbare parkeergelegenheid in de nabijheid van het pand.
BESTEMMING
Geschikt voor: Bedrijven, dienstverlening en kantoren.
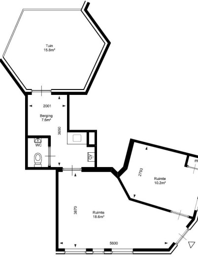
VLOEROPPERVLAKTE
Circa 37,1 m² v.v.o. beschikbaar gelegen op de begane grond met tuin.
OPLEVERNIVEAU
Het object zal in casco staat worden verhuurd. Het gehuurde is voorzien van:
- Eigen entree.
- Tuin aan de achterzijde.
- Toiletvoorziening.
- Huidige pantryvoorziening.
- Huidige verlichtingsarmaturen.
- 24/7 toegankelijkheid.
HUURPRIJS
€ 720,- per maand te vermeerderen met BTW en servicekosten.
SERVICEKOSTEN
€ P.M. Huurder zal direct belast worden door de nutsbedrijven. Mocht dit om technische of andere redenen niet mogelijk zijn dan zal een nog vast te stellen voorschot worden geheven waarbij aan het einde van een periode verrekening plaats vindt op basis van de werkelijke kosten.
BESCHIKBAARHEID
In overleg.
HUURTERMIJN
5 + 5 jaar, andere periodes in overleg. Opzegtermijn 12 maanden.
BETALINGEN
Huur, servicekosten en BTW per maand vooruit.
ZEKERHEIDSSTELLING
Een waarborgsom van ten minste 3 maanden huur, servicekosten en BTW.
HUUROVEREENKOMST
Huurovereenkomst kantoorruimte en andere bedrijfsruimte in de zin van artikel 7:230a BW gebaseerd op het model door de Raad voor Onroerende Zaken (ROZ).
BTW
Huurder verklaart het gehuurde voor tenminste 90% te zullen gebruiken voor prestaties die recht geven op aftrek van omzetbelasting. Indien huurder op enig moment niet meer aan het criterium voldoet, zal er van rechtswege sprake zijn van omzetbelasting vrijgestelde verhuur. Alsdan wordt de overeengekomen kale huurprijs, exclusief omzetbelasting, zodanig verhoogd dat het voor verhuurder ontstane financiële nadeel wordt gecompenseerd.
VOORBEHOUD
Voorbehoud van goedkeuring verhuurder. De vermelde informatie is van algemene aard en is niet meer dan een uitnodiging om in onderhandeling te treden. Aan de inhoud van deze informatie kunnen geen rechten worden ontleend.
INFORMATIE
Van der Linden Bedrijfsmakelaars
onderdeel Van der Linden Groep
Bos en Lommerplein 309-311
1055 RW AMSTERDAM
Tel: 020-5 712 712
