Het object is gelegen op de begane grond op een fraaie zichtlocatie aan de Bilderdijkstraat in de hoek van het gebouw naast de tramhalte. In de nabijheid zijn verschillende winkelketens gevestigd waaronder de Albert Heijn, de Etos, PAKKEND Amsterdam en Casa Amsterdam.
LOCATIE
Het object is aan de Bilderdijkstraat gelegen op een locatie die zowel met de auto, het openbaar vervoer en fiets zeer goed bereikbaar is.
Per auto:
Het object is goed bereikbaar vanaf de ring A10 west via de S106 en de Overtoom of via de S105 en de Jan van Galenstraat naar de Bilderdijkstraat.
Per openbaar vervoer:
Door de uitstekende ligging van het object is de bereikbaarheid met het openbaar vervoer zeer goed. Het is met de tram (lijn 3, 7, 17) goed te bereiken.
Lees verderBESTEMMING
De bestemming is Gemengd – 1: Detailhandel, consumentenverzorgende dienstverlening, publieksgerichte zakelijke dienstverlening.
METRAGE
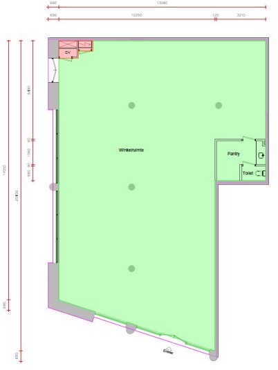
Begane grond circa 240,21 m² b.v.o. winkelruimte.
PARKEREN
Er is voldoende openbare parkeergelegenheid in de nabijheid van het pand waar men tegen betaling kan parkeren.
HUURPRIJS
€ 295,- per m² per jaar, te vermeerderen met servicekosten en BTW.
SERVICEKOSTEN
€ PM,- per m² per jaar, te vermeerderen met BTW.
Huurder zal direct belast worden door de nutsbedrijven. Mocht dit om technische of andere redenen niet mogelijk zijn dan zal een nog vast te stellen voorschot worden geheven waarbij aan het einde van een periode verrekening plaats vindt op basis van de werkelijke kosten.
BESCHIKBAARHEID
In overleg.
OPLEVERNIVEAU
Het gehuurde zal in, casco staat, aan Huurder worden opgeleverd, alles meer dan het casco wordt ‘om niet’ overgedragen waarbij onderhoud en vervanging voor rekening Huurder is. Het object is op dit moment voorzien van:
- Eigen entree aan de straat;
- Huidige indeling;
HUURTERMIJN
5 + 5 jaar, andere periodes in overleg. Opzegtermijn 12 maanden.
BETALINGEN
Huur, servicekosten en BTW per maand vooruit.
ZEKERHEIDSSTELLING
Huurder dient een bankgarantie te stellen ter grootte van tenminste 3 maanden huur en servicekosten, beide bedragen te vermeerderen met BTW.
BTW
Huurder verklaart het gehuurde voor tenminste 90% te zullen gebruiken voor prestaties die recht geven op aftrek van omzetbelasting. Indien huurder op enig moment niet meer aan het criterium voldoet, zal er van rechtswege sprake zijn van omzetbelasting vrijgestelde verhuur. Alsdan wordt de overeengekomen kale huurprijs, exclusief omzetbelasting, zodanig verhoogd dat het voor verhuurder ontstane financiële nadeel wordt gecompenseerd.
OVERIGE CONDITIES
Op basis van het standaard huurcontract, zoals opgesteld door de Raad van Onroerende Zaken (R.O.Z.)
VOORBEHOUD
De vermelde informatie is van algemene aard en is niet meer dan een uitnodiging om in onderhandeling te treden. Aan de inhoud van deze informatie kunnen geen rechten worden ontleend.
INFORMATIE
Van der Linden Bedrijfsmakelaars
onderdeel Van der Linden Groep
Bos en Lommerplein 309-311
1055 RW AMSTERDAM
Tel: 020-5 712 712
Vestigingen: Amsterdam, Almere, Lelystad, Haarlem, Dronten, Zwolle
