Deze nette casco bedrijfsruimte is gelegen op de begane grond aan het Annie Romeinplein. Het Annie Romeinplein is gelegen naast winkelgebied Ganzenpoort. In de nabije omgeving bevinden zich een diversiteit aan winkels en horeca gelegenheden.
LOCATIE
Gelegen op de begane grond Recht aan het Annie Romeinplein tegenover het winkelcentrum Ganzenpoort en nabij metrostation Ganzenhoef.
BEREIKBAARHEID
Eigen vervoer:
Het Annie Romeinplein is gelegen aan de Bijlmerdreef. Dit is een doorgaande weg vanaf de Johan Cruijff Arena en zeer goed bereikbaar vanaf de A2, A10, A9 en de Gooiseweg.
Openbaar vervoer:
Naast het Annie Romeinplen bevindt zich metrostation Ganzenhoef.
Lees verderOp de Bijlmerdreef vertrekt bus 41 en 66 richting Station Bijlmer Arena of Muiderpoort. Daarnaast is Station Bijlmer Arena op minder dan 10 minuten fietsafstand goed bereikbaar.
PARKEREN
Er is voldoende openbare parkeergelegenheid in de nabijheid van het pand.
BESTEMMING
Gemengd-1: Kantoren, maatschappelijk, zakelijke- en publieksgerichte dienstverlening. Overig gebruik (ook horeca) is uitgesloten.
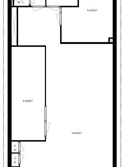
VERHUURBARE OPPERVLAKTE
Ca. 100,4 m² V.V.O. gelegen op de begane grond.
OPLEVERINGSNIVEAU
De ruimte wordt CASCO verhuurd. Het onderhoud en/of vervanging van genoemde elementen is voor rekening van huurder. De ruimte is op dit moment onder andere voorzien van:
- Eigen entree.
- Toiletvoorziening.
- Pantryvoorzieningen.
- Systeemplafond voorzien van verlichtingsarmaturen.
- Huidige indeling.
HUURPRIJS
€ 1.510,- per maand te vermeerderen met BTW.
SERVICEKOSTEN
€ PM.
Huurder zal direct belast worden door de nutsbedrijven. Mocht dit om technische of andere redenen niet mogelijk zijn dan zal een nog vast te stellen voorschot worden geheven waarbij aan het einde van een periode verrekening plaats vindt op basis van de werkelijke kosten.
HUURBETALING
Per maand vooruit.
HUURINGANGSDATUM
In overleg
HUURTERMIJN
5 (vijf) jaren met een verlengingsperiode van 5 (vijf) jaren; opzegtermijn 12 (twaalf) maanden, afwijkende huurtermijnen in overleg.
ZEKERHEIDSSTELLING
Een bankgarantie/waarborgsom gelijk aan 3 maanden huur plus evt. servicekosten, beiden te vermeerderen met BTW.
HUUROVEREENKOMST
Er zal gewerkt worden langs de lijnen van een standaard huurcontract, zoals opgesteld door de Raad voor Onroerende Zaken (R.O.Z.).
HUURINDEXATIE
De huurprijs wordt jaarlijks geïndexeerd, voor het eerst één jaar na huuringangsdatum, op basis van het prijsindexcijfer volgens de consumentenprijsindex (CPI) reeks Alle Huishoudens (2015 = 100) gepubliceerd door het Centraal Bureau voor de Statistiek (CBS).
B.T.W.
Huurder verklaart dat hij voor tenminste 90% met omzetbelasting belast prestaties verricht. Indien huurder op enig moment niet meer aan dit criterium voldoet, zal er van rechtswege sprake zijn van omzetbelasting vrijgestelde verhuur. Alsdan wordt de overeengekomen kale huurprijs, exclusief omzetbelasting, zodanig verhoogd dat het voor de verhuurder ontstane financiële nadeel wordt gecompenseerd.
